Vincent Van Goghstraat 13

Verkocht
  • Tilburg

Over deze woning

Het meest aantrekkelijke aan deze ruime woning is dat hij volledig om te toveren is naar jouw ideale droomhuis.
Deze doorzonwoning aan de Vincent van Goghstraat biedt je daar alle kansen toe. Hij heeft een steengoede basis vol mogelijkheden. Hier woon je echt fantastisch!
– Een tussenwoning met heel veel natuurlijk licht.
– Drie tot vier ruime slaapkamers.
– Een diepe tuin met veel privacy.
– Solide gebouwd in 1960 met degelijke, eerlijke materialen.
– Te koop in bijna originele staat van eerste eigenaar.
– Perfect om met een eerste, beperkte investering een groot effect te behalen in bijvoorbeeld keuken en badkamer.
– Verdere modernisering kan heel goed in stappen uitgevoerd worden.
– Veel voorzieningen in de directe omgeving.
– Wonen in een gezellige en kindvriendelijke wijk binnen de ringbanengordel.
– Vlakbij het stadscentrum maar niet midden in de drukte.
– Dicht bij openbaar vervoer en uitvalswegen.

Je kan je spaargeld slim besteden èn er meteen veel woonplezier uit halen. Het tempo waarin is aan jou. Elke investering laat de waarde direct toenemen. Dat maakt het een ideaal huis voor zowel starters, creatieve klussers als gezinnen. Deze woning kan, als je wilt, een leven lang meegroeien. Kies de veranderingen die jou passen en het comfort en de luxe waar jij prijs op stelt.
Een woning vol kansen, die het bezichtigen meer dan waard is!
De Vincent van Goghstraat 13 wacht op jouw frisse blik en nieuwe energie.

Begane grond

Je komt de woning binnen via de entree met de rechte trapopgang, de meterkast, toegang tot de toiletruimte met fonteintje, de altijd koele kelderkast en de keuken.

Meteen valt de karakteristieke zestiger-jaren stijl op door de natuurlijke en functionele materialen zoals zebraglas in de hal (en in kamerdeuren op eerste verdieping), natuurstenen vloer- en wandtegels, metalen deurkozijnen, bakelieten deurklinken en zwart hardstenen dorpels. Uit de jaren zeventig dateren het granol sierpleister en de hardhouten Basralocus parketvloeren.

De eenvoudige keuken verdient een upgrade, maar heeft absoluut de ruimte en mogelijkheden voor een nieuwe indeling in praktische en modernere stijl.
Er is al een doorloopmogelijkheid naar de huiskamer die je kunt verdubbelen zodat één verbonden ruimte ontstaat. De keukendeur komt uit op het terras.

In de super lichte woonkamer ben je geheel vrij in een opstelling rond de haard of aan de tuinkant. Er is aan beide zijden ruimte voor bijvoorbeeld een flinke lounge-set of een grote familietafel.

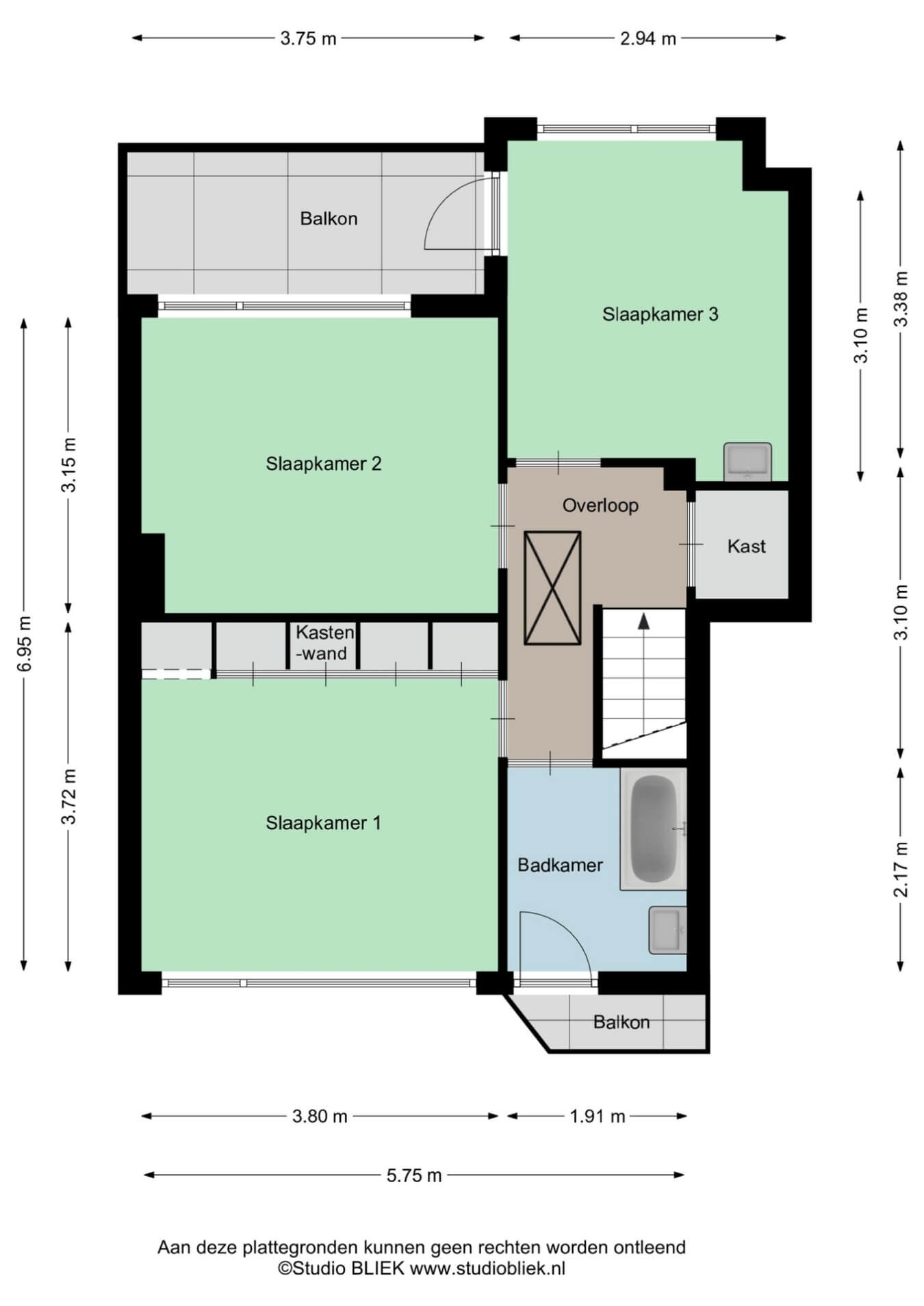
Eerste verdieping

Via de rechte trap in de hal kom je op de overloop. Hier heb je toegang tot een extra grote gangkast, drie slaapkamers, de badkamer en indirect tot twee balkons.
De oppervlakten van beide bovenverdiepingen zijn ruim 4 m2 groter dan de benedenverdieping!

Alle slaapkamers hebben een prima basis en zijn ruim genoeg voor alle gewenste meubels en een tweepersoons bed. De keuze is daarom geheel aan jou. Houd je ervan door de zon wakker gemaakt te worden, kies dan de kamer aan de voorzijde met de lange kastenwand. Ga je voor koelte, kies dan of je aan de tuinzijde ook een wastafel en toegang tot je balkon wilt.

Mocht je niet zoveel slaapkamers nodig hebben, dan kan je die natuurlijk een andere functie geven. Een thuiswerkplek of hobbykamer is zo geregeld.
De badkamer is functioneel ingericht met een bad met douche, een wastafel, een aansluiting voor een wasmachine en enorm veel daglicht. Deze ruimte zal je willen moderniseren met het oog op de woonwensen van deze tijd, maar daar biedt het huis je alle ruimte en mogelijkheden voor.
Tweede verdieping

Via de Vlizotrap bereik je de verrassing van het huis: de hoge zolderverdieping. Hier staat alleen de verwarmingsinstallatie, maar met een vaste trap en een brede dakkapel zou je hier een voorzolder met heel veel bergruimte, plus een extra grote, luxe slaapkamer kunnen creëren. Er is onder het schuine dak ontzettend veel opbergruimte en een groot aantal kledingkasten te realiseren.

Je kunt zelfs overwegen in de kast op de overloop van de eerste verdieping een tweede toilet te maken en – als je toch bezig bent – op de voorzolder erboven voor een wasmachine/doucheruimte met wastafel en/of derde toilet te kiezen.

Heb je eerder behoefte aan een zeer ruime werk- of hobbyzolder? Hier werk en geniet je in alle rust. Met wat liefde en aandacht voeg je zo een waardevolle en heerlijke woonverdieping aan het huis toe.
Tuin
De gesloten, grote achtertuin is veilig voor kinderen en huisdieren. Hij ligt op het noordwesten, waardoor je er van de vroege middag tot in de avonduren ontspannen van de zon kunt genieten. Hij biedt veel privacy, is groen en diep, met 2 terrassen over de volle breedte, een elektrische zonwering die een schaduwrijk en koel terras garandeert, fraaie vaste beplanting en een achterom via een afgesloten, inpandige (gedeelde) poort.

Achter in de tuin is een stenen berging met elektriciteit: ideaal voor je fietsen, klusgereedschap, tuinspullen en een tweede koelkast/vriezer.
Deze tuinindeling is ideaal voor buiten leven met gezin en gezelschap, plaatsing van een bbq/buitenkeuken of aanleg van een moestuin.

Omgeving

Wonen in de Vincent van Goghstraat doe je met plezier. De buurt heeft naar verhouding veel jonge bewoners. Men kent elkaar en kijkt naar elkaar om.
De wijk Korvel heeft karakter en een heel lange geschiedenis.
Het is een verkeersluwe buurt.
Er is een basisschool en kinderopvang.
De Korvelse Kerk werd een gezondheidscentrum.
Er zijn veel sportclubs in de buurt en naar stadion Willem II lóóp je.
In wijkcentrum De Nieuwe Stede kan je terecht voor hobby’s en ontmoetingen.
Op loopafstand zijn twee grote supermarkten en winkels.
Binnen vijf minuten fietsen vind je meer winkels aan het Burgemeester van de Mortelplein en de Korvelseweg, die een directe verbinding is naar het Tilburgse stadshart.
Bushaltes van vijf stads- en streekbussen liggen op één tot zes minuten wandelen.
Via uitvalswegen als de Ringbaan-West ben je in een paar minuten op de A58 en bij knooppunt De Baars.

Tilburg is een levendige onderwijsstad met een industrieel verleden. Dat zorgt voor een prettige mix van oud en nieuw, voor behoud èn ruimte voor moderne ontwikkelingen, ook in deze wijk. Daarom profiteer je er van de ruime mogelijkheden voor ontspanning en cultuur. Je kan er uitgaan en shoppen, muziek luisteren of maken. De schouwburg, musea, markten, evenementen en de kermis zijn beroemd. Je kan per bus naar de Beekse Bergen of zelf binnen 20 minuten naar de Efteling rijden. Minder bekend is hoe dichtbij Goirle ligt, met zeer goede parkeermogelijkheden, winkels, bibliotheek en een paar prachtige natuurgebieden op fietsafstand. Veel Tilburgers rijden graag over de grens naar België. Benzine en verse broodjes op zondag zijn al lang niet meer de enige reden.

Ontwikkelingen staan in deze wijk niet stil: de hele Korenbloemstraat werd in 2023 verbeterd om het doorgaande verkeer te weren en fietsers vrij baan te geven. In 2026 realiseert de gemeente Winkellint Korvelseweg, zodat jouw directe woonomgeving nog groener en beter toegankelijk wordt.

Hoe kunnen we je helpen?

We beantwoorden graag al je vragen.

Bart uw makelaar

Woningzoeker

Wij houden je op de hoogte van het nieuwste woningaanbod.