Horversplein 16-A

  • Tilburg
  • € 375.000,- k.k.

Over deze woning

Een ruime en energiezuinige woning met vier slaapkamers, zonnige tuin en fijne ligging centraal in Tilburg – dat is deze fijne woning in een notendop.
Met haar nette afwerking, slimme uitbouw en overvloed aan ruimte is dit een heerlijke plek om te wonen. Een huis dat rust, comfort en toekomstbestendigheid perfect combineert. Zie jij jezelf hier al thuiskomen?

Omgeving
Je gaat wonen aan een rustig, autovrij veldje met bomen en speeltoestellen – een ideale plek voor jonge gezinnen of iedereen die houdt van een groene en veilige omgeving. Hier kunnen kinderen vrij spelen terwijl jij geniet van de rust en het uitzicht.

Je gaat wonen in de gewilde woonwijk Theresia. Je woont hier op korte afstand van een breed scala aan winkels, scholen en sportvoorzieningen, bijvoorbeeld rondom het Besterdplein, maar ook op loopafstand van het bruisende stadscentrum van Tilburg. En dat is er niet zomaar één.
Tilburg is een stad die barst van de creativiteit, waar je altijd weer verrassende ontdekkingen doet en waar de vele verborgen pareltjes zichzelf blijven onthullen. Hier leerde Vincent van Gogh tekenen en groeide Guus Meeuwis uit van student tot volksheld. Hier heb je spraakmakende musea, zoals De Pont en het Textielmuseum, maar ook een dwaalgebied vol bijzondere cafés en winkels in prachtige historische panden. Hier ontdek je de hippe Spoorzone (om de hoek), met restaurants waar je heerlijk en uniek kunt eten, of de gezellige Piushaven voor ontspanning op en aan het water. Hier proef je het gevoel van een echte evenementenstad met onder andere de Tilburgse kermis, het Festival van het Levenslied, Carnaval, de Meimarkt, Tilburg Zingt, Roadburn Festival en Tilburg Ten Miles. Hier ben je thuis.
Hoewel in Tilburg alles zit wat je nodig hebt, bevind je je via de ringbanen binnen afzienbare tijd op de (snel)wegen richting Eindhoven, ’s-Hertogenbosch, Breda en de omliggende Brabantse dorpen. Ook sta je vanaf het Horversplein binnen 5 minuten op het Centraal Station wanneer je gebruik wilt maken van het openbaar vervoer.

Indeling

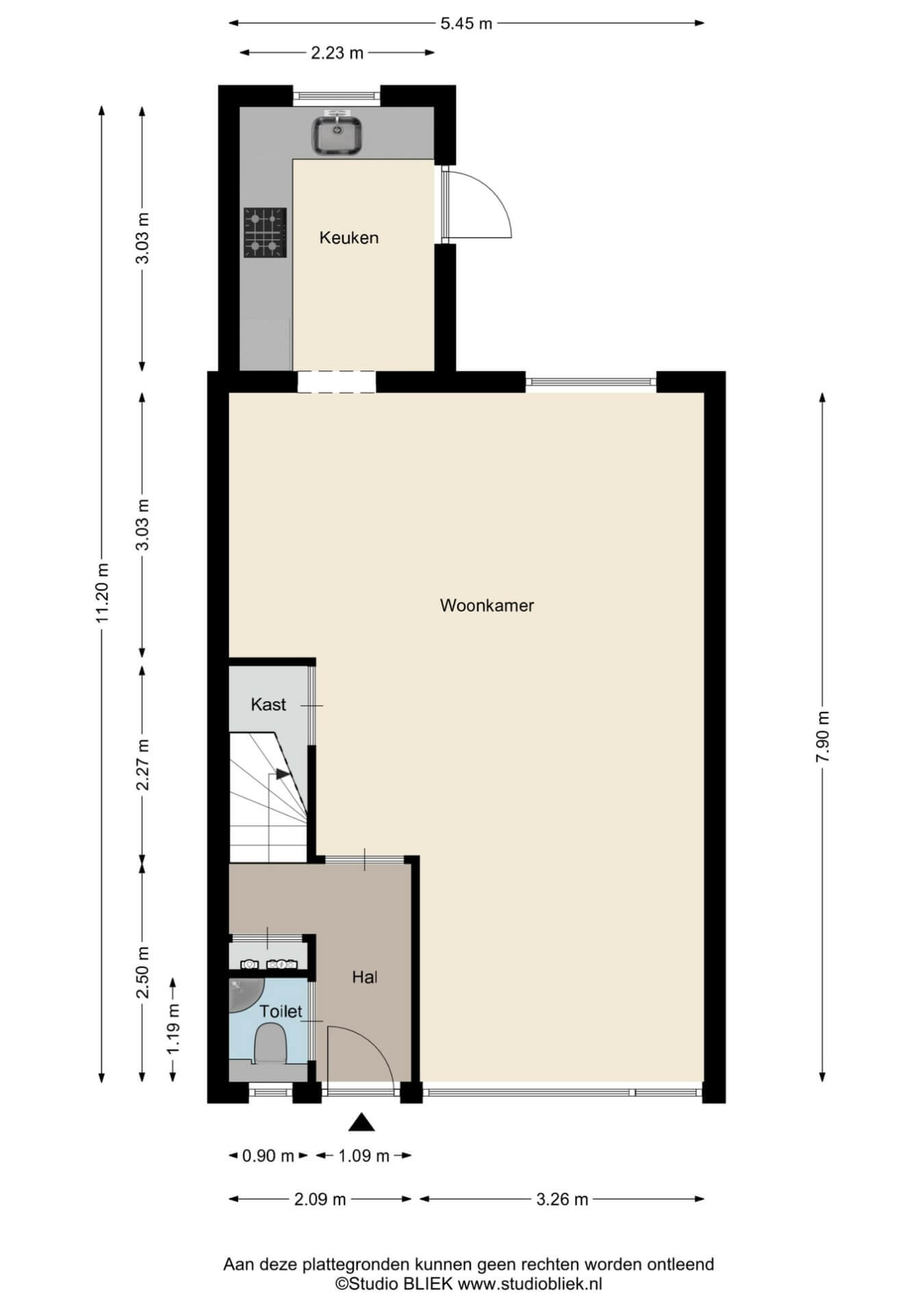
Begane grond

Via de hal, met toegang tot de toiletruimte met hangend closet en fonteintje, trapopgang en vernieuwde meterkast, stap je binnen in de ruime woonkamer. De living verrast direct door de royale afmetingen en het vele daglicht dat van beide kanten binnenvalt. De uitbouw aan de achterzijde zorgt voor extra leefruimte en maakt het mogelijk om eenvoudig een apart zit- en eetgedeelte te creëren. Vanuit de voorzijde van de woning kijk je aangenaam uit op het groene veldje.

De keuken (2016) bevindt zich aan de achterzijde en is voorzien van diverse inbouwapparaten, waaronder een oven (2023), koelkast, vriezer, vaatwasser (2023), 4-pits gaskookplaat en afzuigkap. Dankzij de degelijke fundering is de uitbouw voorbereid op een eventuele toekomstige opbouw – ideaal als je later nog wilt uitbreiden.

Eerste verdieping

Via de gerenoveerde trap kom je uit op de overloop vanwaar je toegang hebt tot drie goede slaapkamers, allemaal netjes afgewerkt en praktisch ingedeeld. Of je ze nu gebruikt als master bedroom, kinderkamers of werkplek, de mogelijkheden zijn eindeloos.
De badkamer beschikt over een inloopdouche en wastafel. Mocht deze niet helemaal binnen je smaak vallen dan heb je hier alle mogelijkheden om er iets moois van te maken

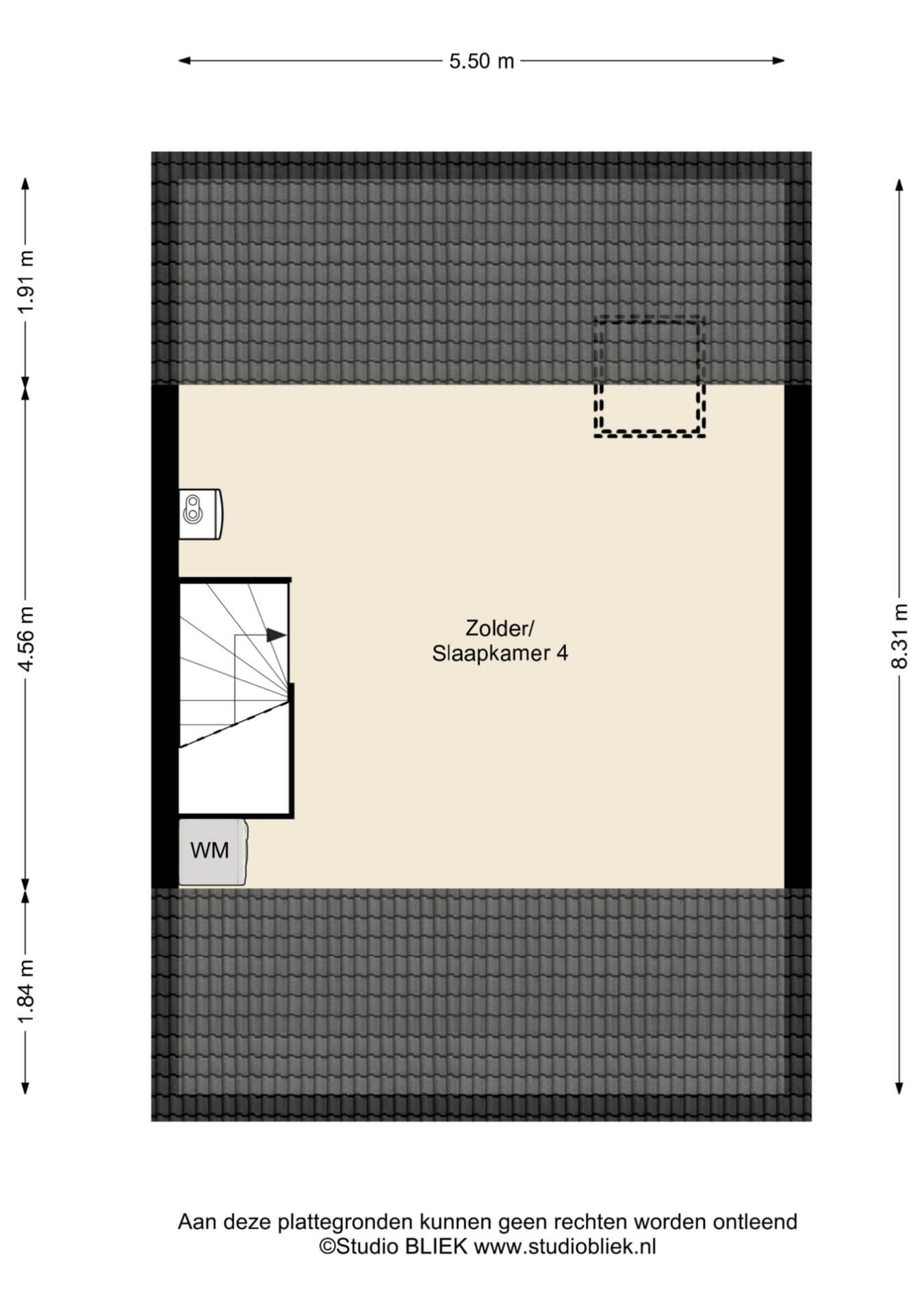
Tweede verdieping

Via de vaste trap bereik je de zolderverdieping, die dienst kan doen als vierde slaapkamer of bijvoorbeeld als werk- of sportruimte.

Tuin

De stadstuin op het zuiden is heerlijk zonnig en onderhoudsvriendelijk met kunstgras aangelegd. Hier kun je in alle rust genieten van de vroege lentezon en de lange zomerdagen, met genoeg plek voor een loungehoek of eettafel. Achterin bevindt zich een stenen berging, perfect voor fietsen, gereedschap of extra opslag. De tuin met deels een nieuwe schutting is bereikbaar via een handige achterom.

Bijzonderheden

• Ruime, energiezuinige woning met energielabel A;
• Vier nette slaapkamers;
• Rustige ligging aan autovrij veldje met groen en speeltoestellen;
• Centrale locatie binnen de ringbanen, nabij centrum en voorzieningen;
• Keuken (2016) met fundering voor mogelijke opbouw;
• Zonnige tuin op het zuiden met stenen berging en achterom;
• Klaar voor de toekomst!

Kenmerken

Vraagprijs€ 375.000,- k.k.
StatusBeschikbaar
Bouwjaar1983
Woonoppervlakte119 m2
Perceeloppervlakte130 m2
Aantal kamers5 (waarvan 4 slaapkamers)
Aantal badkamers1
EnergielabelA
Download brochure

Plattegronden

Heeft u interesse in deze woning?

Bart vertelt u graag meer!

Bart uw makelaar

Woningzoeker

Wij houden je op de hoogte van het nieuwste woningaanbod.