Margriet 27

Verkocht
  • Udenhout

Over deze woning

Ben jij op zoek naar verrassend veel ruimte, een veranda én vier slaapkamers?
Welkom thuis aan de Margriet 27 in Udenhout! Achter de gevel van deze netjes onderhouden tussenwoning schuilt een ware verrassing: een flinke uitbouw op de begane grond, een riante woonkeuken, een heerlijke veranda én een enorme stenen berging van maar liefst ca. 23 m². De woning heeft daarnaast vier slaapkamers en ligt op een fijne, kindvriendelijke locatie aan een ruim en groen speelplantsoen in de geliefde wijk De Kuil. Pak je verhuisdozen maar vast in, want hier wil je wonen!

Omgeving
De Margriet ligt in de rustige en kindvriendelijke wijk “De Kuil” in Udenhout. Kinderen kunnen hier veilig spelen aan het groenrijke plantsoen schuin voor de deur. Scholen, winkels en andere dagelijkse voorzieningen liggen allemaal op loop- of fietsafstand.

Voor natuurliefhebbers is dit een toplocatie: je fietst zó naar natuurgebied De Brand of de uitgestrekte Loonse en Drunense Duinen. Bovendien ben je met de auto snel op weg richting Tilburg, Eindhoven of ’s-Hertogenbosch. En voor de gezelligheid of een dagje uit? De Efteling en Safaripark Beekse Bergen liggen praktisch om de hoek!

Indeling
Begane grond
Via de voortuin kom je binnen in de hal met garderobe, meterkast en een modern toilet. Vanuit hier loop je door naar de verrassend ruime woonkamer met lichte tegelvloer

Aan de achterzijde van de woning is de begane grond flink uitgebouwd. Hier vind je een ruime woonkeuken, perfect voor gezellige etentjes of lange ontbijtmomenten. De keuken is uitgerust met alles wat je nodig hebt: een inductiekookplaat, vaatwasser, oven, koelkast en afzuigkap (2023). Dankzij de lichtkoepel en de openslaande deuren naar de tuin is dit een lichte, aangename plek in huis.

En dan de veranda… een fantastische toevoeging! Hier kun je het hele jaar door beschut genieten van het buitenleven. De aluminium veranda is afgewerkt met tegels, zonwerende dakplaten en een glazen schuifpui. Ideaal voor een kop koffie in de ochtendzon of een gezellige borrel met vrienden.

Eerste verdieping
Op de eerste verdieping bevinden zich drie slaapkamers, allen voorzien van een nette laminaatvloer. De ruimtes zijn licht, netjes onderhouden en geschikt als slaap-, werk- of hobbykamer. De badkamer is volledig betegeld en beschikt over een ligbad, douchecabine, hangtoilet, wastafelmeubel en een designradiator. Dankzij het raam geniet je hier ook van natuurlijke ventilatie.

Tweede verdieping
Via een vaste trap bereik je de zolderverdieping. Op de voorzolder vind je de aansluiting voor de wasapparatuur, de CV-ketel (Nefit 2008) en extra bergruimte. Dankzij een Velux dakraam is het hier heerlijk licht.

Aansluitend bevindt zich de vierde slaapkamer met dakkapel en eveneens afgewerkt met een laminaatvloer. Of je nu behoefte hebt aan een extra slaapkamer, een thuiskantoor of een hobbyruimte – hier is het mogelijk.

Tuin
De achtertuin op het zuidoosten is volledig betegeld, voorzien van een vijver, buitenverlichting, wateraansluiting en een mix van houten en stenen erfafscheidingen.
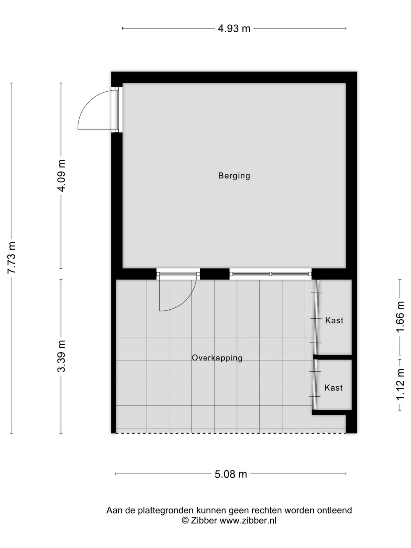
Achterin de tuin vind je een enorme stenen berging over de volle breedte van het perceel, met eigen achterom, dakisolatie, elektra en een wateraansluiting. Voor deze berging is een stijlvolle overkapping gerealiseerd met inbouwspots – ideaal als tweede terras of buitenwerkplek.

Bijzonderheden
• Verrassend ruime tussenwoning met maar liefst vier slaapkamers;
• Flinke uitbouw op de begane grond met woonkeuken;
• Luxe veranda met glazen schuifpui;
• Grote stenen berging met overkapping en achterom;
• Volledig bestraatte tuin met zuidoostelijke ligging;
• Gelegen aan een kindvriendelijk speelplantsoen;
• Rustige woonomgeving met veel groen in de wijk “De Kuil”;
• Alle voorzieningen dichtbij, net als natuurgebieden en uitvalswegen;
• Netjes onderhouden woning met veel ruimte en mogelijkheden.

Hoe kunnen we je helpen?

We beantwoorden graag al je vragen.

Bart uw makelaar

Woningzoeker

Wij houden je op de hoogte van het nieuwste woningaanbod.