Ringbaan Oost 379

Verkocht
  • Tilburg

Over deze woning

Een sfeervolle jaren ’30 woning met karakter, verrassend veel licht, vier slaapkamers en een zonnige stadstuin op het westen; dat vat deze leuke woning aan de Ringbaan-Oost perfect samen. Dankzij de nette afwerkingen, authentieke elementen en moderne voorzieningen is dit huis helemaal klaar om een nieuwe bewoner te verwelkomen. Zie jij jezelf hier al wonen?

Omgeving
Je woont hier op een ideale plek aan de Ringbaan-Oost: een perfecte balans tussen stad en natuur. Binnen enkele minuten fiets je naar het bruisende centrum van Tilburg en het treinstation, terwijl ook de uitvalswegen richting Oisterwijk, Hilvarenbeek en het groene Moerenburg om de hoek liggen.

In de buurt vind je winkels, scholen en gezellige horecagelegenheden, maar ook rust en ruimte wanneer je dat nodig hebt. Dankzij de groene voortuin en de slimme ligging ervaar je bovendien verrassend veel privacy en weinig hinder van verkeer. Kortom: een heerlijke woonplek voor wie het beste van beide werelden zoekt.

Indeling
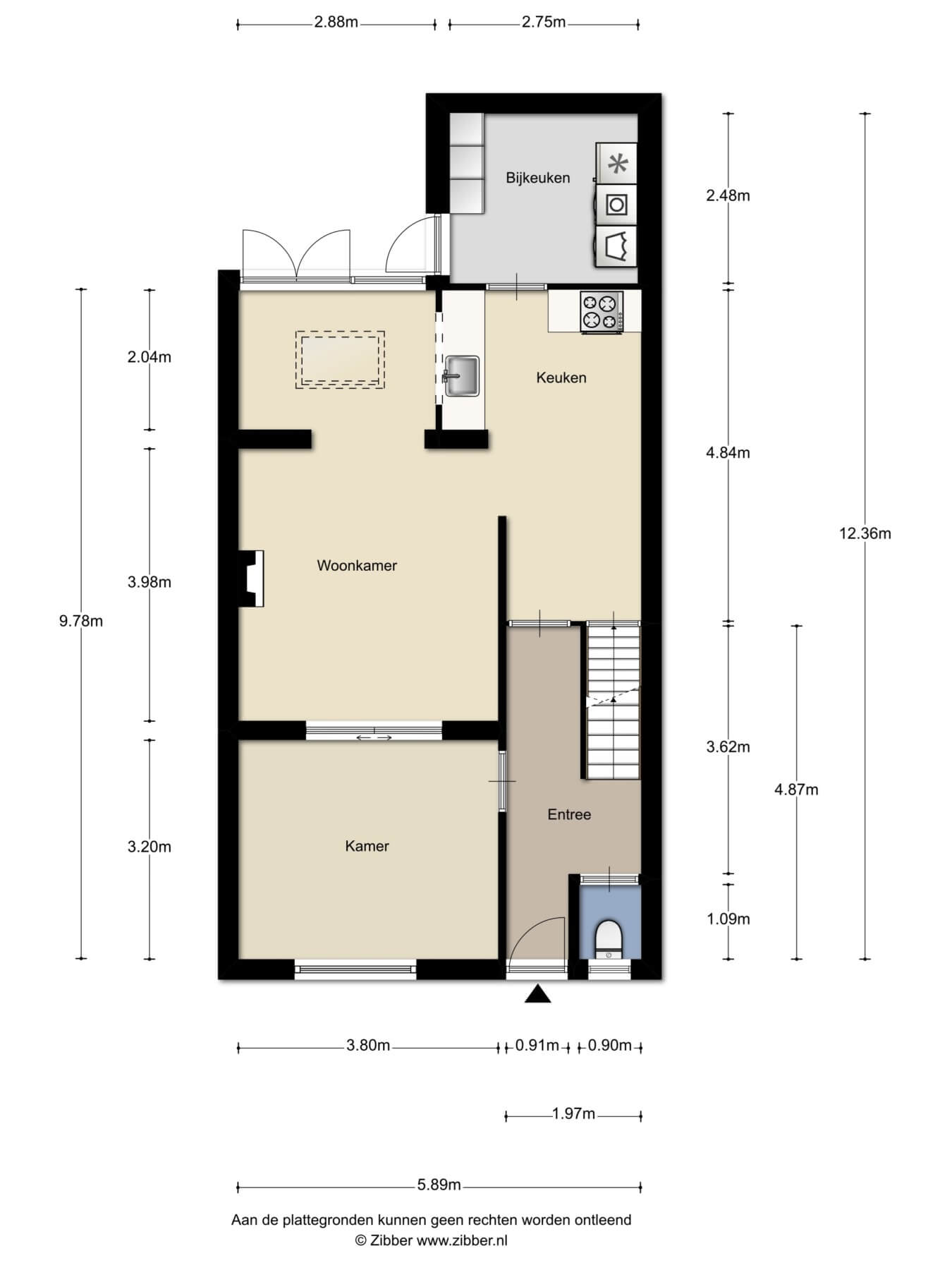
Begane grond
Via de groene voortuin kom je binnen in de hal, vanwaar je de moderne toiletruimte (2020) met hangend closet en fonteintje, de trapopgang en de toegang tot de voorkamer vindt.

Volg je de hal verder, dan kom je in de lichte woonkeuken. Deze halfopen keuken biedt uitzicht op de achterkamer. De keuken en bijkeuken zijn voorzien van alle gemakken: een 4-pits gaskookplaat, combi-oven, vaatwasser, boiler en aansluitingen voor wasapparatuur. Vanuit de keuken heb je toegang tot de kelder (met vernieuwde meterkast).

De woonkamer bestaat uit een sfeervolle voor- en achterkamer, gescheiden door ensuite deuren. De voorkamer biedt een fijn uitzicht op de voortuin, ideaal als zit- of eetgedeelte. De achterkamer is heerlijk licht dankzij de lichtkoepel, het grote raam en de openslaande tuindeuren naar de tuin.

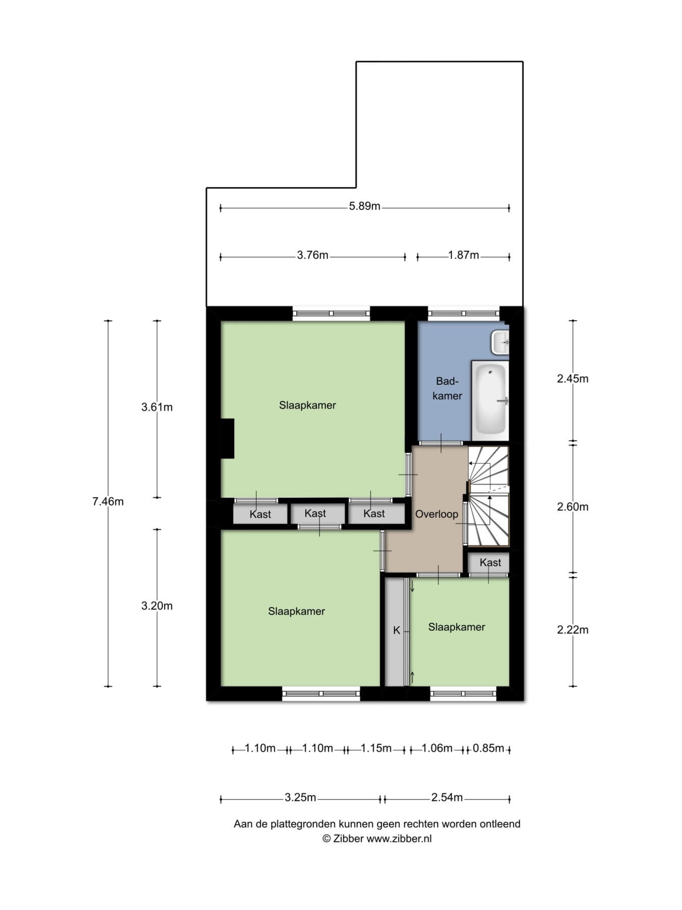
Eerste verdieping
Op de eerste verdieping vind je drie verzorgde slaapkamers en de moderne badkamer (2020). Alle kamers zijn voorzien van kunststof kozijnen met dubbele beglazing (2012) en handige bergkasten.

De grootste slaapkamer is aan de achterzijde gelegen en de overige twee slaapkamers aan de voorzijde. Alle slaapkamers zijn aangenaam licht en netjes afgewerkt. Hoe je deze ruimtes gaat verdelen tussen de master bedroom en een kinderkamer of ander soort kamer – denk bijvoorbeeld aan een werk/studeerkamer of kastenkamer – is helemaal aan jou.

De moderne badkamer met vloerverwarming ziet er luxe en sfeervol uit en is voorzien van een inloopdouche, wastafelmeubel en een design radiator. Een fijne plek om even tot rust te komen.

Tweede verdieping
De zolder is een verrassend ruime verdieping met zichtbare houten balken, houten kozijnen en twee grote Velux dakramen. Dankzij de ingebouwde Bose-speakers in het plafond is dit een heerlijke plek om te ontspannen of muziek te luisteren. In de bergruimte bevindt zich de cv-ketel (2023) en een sanibroyeur. Hoe ga jij deze verdieping inrichten?

Tuin
De knusse stadstuin op het westen is een heerlijke plek om te genieten van de middagzon. Dankzij de openslaande deuren voelt de tuin als een verlengstuk van de woonkamer. Via de achterom fiets je bovendien zo de wijk Loven in, waar je alle dagelijkse voorzieningen vindt.

De groene voortuin zorgt voor extra privacy en een prettige afscheiding van de Ringbaan-Oost, waardoor je hier rustig en beschut woont.

Bijzonderheden
• Sfeervolle jaren ’30 tussenwoning met sfeervolle details;
• Gelegen nabij centrum, treinstation en buitengebied Moerenburg;
• Vier nette slaapkamers;
• Moderne badkamer (2020) en toilet (2020);
• Knusse stadstuin op het westen met achterom;
• Groene voortuin met veel privacy;
• Karaktervol wonen in een omgeving, dichtbij het centrum van Tilburg.

Hoe kunnen we je helpen?

We beantwoorden graag al je vragen.

Bart uw makelaar

Woningzoeker

Wij houden je op de hoogte van het nieuwste woningaanbod.