Berkdijksestraat 105

  • Tilburg
  • € 359.500,- k.k.

Over deze woning

Zodra je binnenstapt bij Berkdijksestraat 105 in Tilburg voel je het meteen: dit is geen standaard woning. De speelse indeling, de verrassende ruimte en de warme sfeer zorgen ervoor dat elke ruimte zijn eigen karakter heeft. De combinatie van licht, slimme aanpassingen en een uitnodigende uitstraling maakt dit een huis dat niet alleen praktisch is, maar vooral ook heel fijn aanvoelt. Een plek waar je iedere dag met plezier thuiskomt.

Locatie
De woning is gelegen op een centrale en levendige plek in Tilburg, op korte afstand van het Korvelplein met onder andere een Albert Heijn voor de dagelijkse boodschappen. Ook het Burgemeester van de Mortelplein ligt nabij, bekend om zijn diverse speciaalzaken en gezellige sfeer. Dankzij de ligging nabij de Ringbaan Oost zijn uitvalswegen eenvoudig bereikbaar, wat zorgt voor een uitstekende verbinding binnen en buiten de stad. Een locatie die gemak en levendigheid perfect combineert.

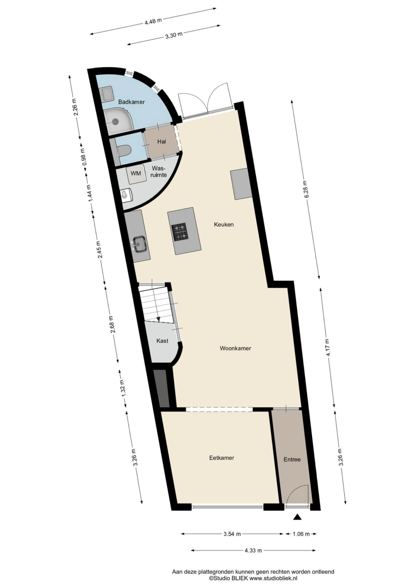
Indeling

Begane grond:
Je komt binnen in de hal, waar direct de charmante sfeer van de woning voelbaar is. De leefruimte is verrassend ruim en speels ingedeeld. Aan de voorzijde bevindt zich het zitgedeelte, een knusse plek om te ontspannen met uitzicht op de straat.
Meer naar het midden van de woning ligt het eetgedeelte, een centrale plek waar geleefd en samengekomen wordt. Hier bevindt zich een sfeervolle inbouwkast, waarbij je door de onderkastjes bij de kelder komt, ideaal voor extra provisie en opslag.

De open keuken vormt het hart van het huis en is modern ingericht met een kookeiland, waardoor koken en gezelligheid naadloos samenkomen. De solartube zorgt voor een prachtige inval van natuurlijk daglicht, wat de ruimte een lichte en uitnodigende uitstraling geeft.

Aan de achterzijde, in de typische ronding van de woning, bevindt zich een verrassend praktische ruimte met de opstelling van de wasapparatuur en de cv-ketel, evenals extra bergruimte. Deze slimme indeling zorgt ervoor dat functionaliteit en sfeer hier hand in hand gaan.

Aansluitend vind je het separate toilet en de badkamer. Ook de badkamer heeft de speelse ronding van de woning en is voorzien van ramen naar buiten, wat zorgt voor een prettige lichtinval. De ruimte is ingericht met een wastafelmeubel en een douchecabine.

Eerste verdieping:
De royale overloop voelt open en ruim aan en is voorzien van vaste kasten. Dankzij de grote dakkapel aan de achterzijde is hier bovendien een fijne werkplek gecreëerd, een lichte en rustige plek om thuis te werken of te studeren.

De verdieping beschikt over twee slaapkamers. De slaapkamer aan de voorzijde strekt zich uit over de volle breedte van de woning en is een echte eyecatcher. Hier zorgen de zichtbare balken en spanten voor een knusse, sfeervolle plek rondom het bed. De dakkapel aan de voorzijde creëert extra ruimte en licht, en biedt bovendien een ideale plek voor het plaatsen van een ruime kastenwand.

De achterslaapkamer is eveneens prettig van formaat en dankzij de dakkapel heerlijk licht, wat deze kamer een comfortabele en aangename uitstraling geeft.

Tweede verdieping:
Via een vlizotrap bereik je de bergzolder. Deze ruimte wordt momenteel gebruikt als bergruimte en is ideaal voor het opbergen van seizoensspullen en overige zaken die je uit het zicht wilt houden.

Tuin
Via de tuindeuren stap je zo de gezellige achtertuin in, waar binnen en buiten op een natuurlijke manier in elkaar overlopen. De tuin is groen en sfeervol aangelegd en biedt een fijne plek om te ontspannen of samen te komen. De karakteristieke ronding in de achtergevel zorgt voor een speelse en vloeiende overgang naar buiten, wat de tuin een uniek en charmant karakter geeft.

Aan de achterzijde bevindt zich een sfeervolle houten overkapping met ruimte voor een eettafel, een heerlijke plek om lange avonden buiten door te brengen. Daarnaast is er een praktische berging aanwezig. Een tuin die niet alleen functioneel is, maar vooral ook uitnodigt om van het buitenleven te genieten.

Ben je op zoek naar een sfeervolle woning met karakter, een verrassende indeling en een centrale ligging? Dan is Berkdijksestraat 105 een plek waar je je direct thuis zult voelen. Een charmant huis met een eigen gezicht, klaar voor een nieuwe bewoner in Tilburg.

Kenmerken

Vraagprijs€ 359.500,- k.k.
StatusBeschikbaar
Bouwjaar1905
Woonoppervlakte100 m2
Perceeloppervlakte150 m2
Aantal kamers3 (waarvan 2 slaapkamers)
Aantal badkamers1
EnergielabelC
Download brochure

Plattegronden

Heeft u interesse in deze woning?

Bart vertelt u graag meer!

Bart uw makelaar

Woningzoeker

Wij houden je op de hoogte van het nieuwste woningaanbod.