Akkerstraat 83

Verkocht
  • Tilburg

Over deze woning

Stel je voor: wakker worden in een groene oase van rust, terwijl de levendige binnenstad zich op slechts enkele minuten afstand bevindt. Hier woon je tussen bloeiende bomen, groene perkjes en gezellige moestuintjes, een plek waar stad en natuur elkaar moeiteloos ontmoeten.

Locatie

Deze charmante woning ligt op een unieke plek, verscholen tussen het groen en toch verrassend centraal. Je opent de poort en wandelt zó een parkje in, waar de bomen in het voorjaar uitbundig in bloei staan. Via de knusse moestuintjes bereik je het geliefde Kromhoutpark of wandel je langs de Rooi Harten en door de Bomenbuurt richting het Spoorpark. Sla je de andere kant op? Dan sta je binnen enkele minuten in het bruisende centrum. Een locatie die je met recht ideaal mag noemen.

Indeling

Begane grond

Via de entree betreed je de hal met toegang tot de woonkamer. De lichte laminaatvloer en strak gestucte wanden en plafonds zorgen voor een frisse en verzorgde uitstraling. Aan de voorzijde bevindt zich de meterkast; aan de achterzijde vind je de trapopgang naar boven.
De diepe keuken is praktisch ingericht met aan weerszijden een keukenblok en voorzien van onder andere een inductie kookplaat, afzuigkap, (losse) vaatwasser en inbouwspots. Vanuit hier bereik je zowel de trapkast als de tuin. Het aangrenzende tussenportaal geeft toegang tot de deels betegelde toiletruimte en de volledig betegelde badkamer met douche en wastafel.

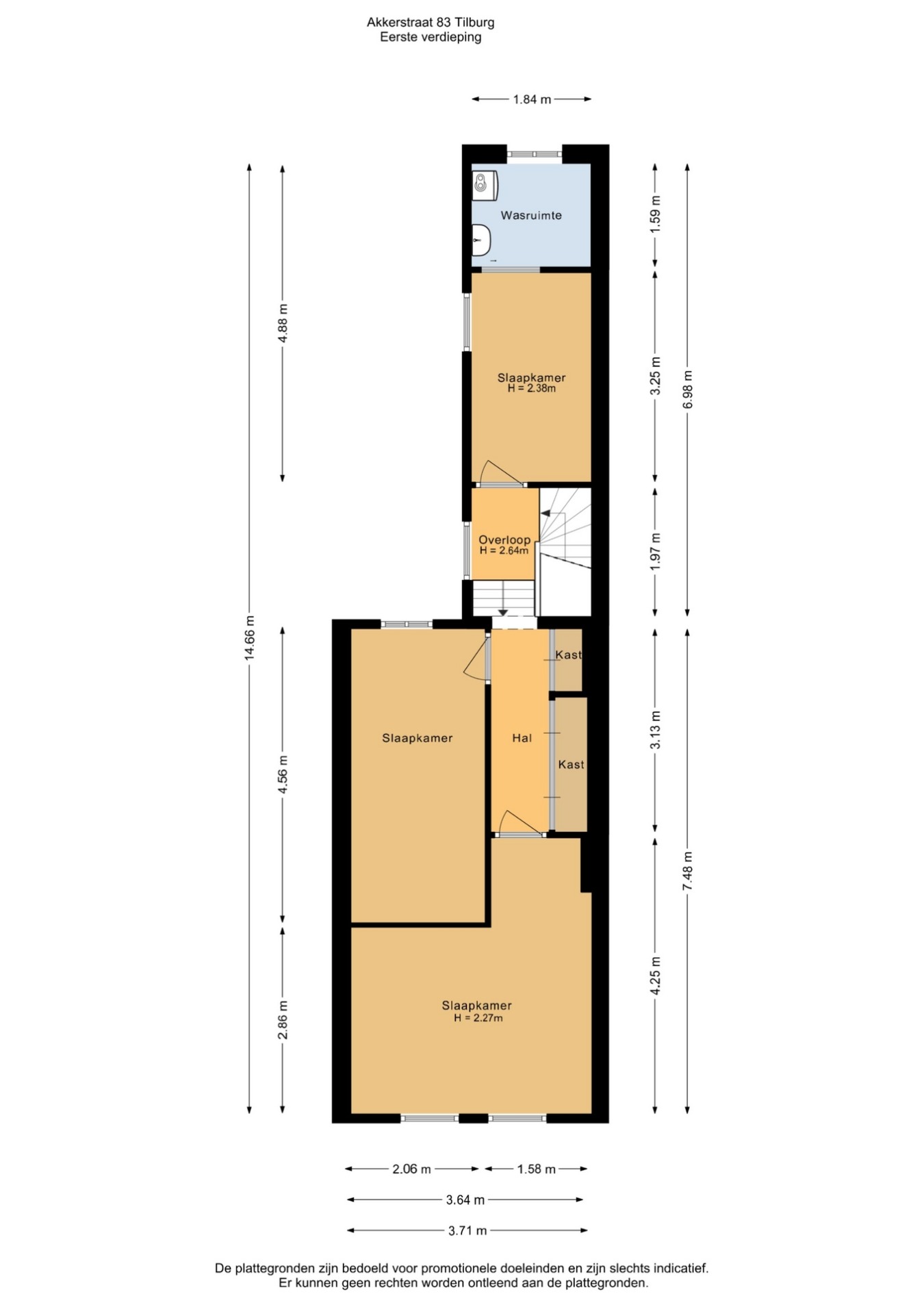
Eerste verdieping

De overloop biedt toegang tot drie slaapkamers en een ruime kastenwand. De grootste slaapkamer strekt zich uit over de volledige breedte aan de voorzijde en is uitgerust met airconditioning. Aan de achterzijde bevinden zich nog twee slaapkamers. De kleinste kamer beschikt over een praktische schuifwandkast met daarachter de opstelling van de combi-ketel, aansluitingen voor wasapparatuur en een spoelbak.

Buitenruimte

De diepe en verzorgde achtertuin is een heerlijke plek om te ontspannen. Met sierbestrating, diverse plantenborders en een achterom is het hier genieten van privacy en groen. De stenen berging met elektra en overkapping biedt extra gemak. Bovendien is er de mogelijkheid om op eigen terrein een garage te realiseren, een waardevolle toevoeging.

Bijzonderheden

• Gelegen aan de achterzijde aan een park met parkeergelegenheid
• Op korte afstand van Kromhoutpark, Spoorpark en de binnenstad
• Mogelijkheid tot het realiseren van een garage op eigen terrein
• Houten kozijnen met isolerende beglazing en dakisolatie
• Gedeeltelijk voorzien van voorzetwanden
• Verwarming en warm water via Vaillant HR combi-ketel (2014)

Een sfeervolle woning op een plek waar rust, ruimte en stadse dynamiek samenkomen. Hier woon je tussen het groen, met alle voorzieningen binnen handbereik. Een huis dat niet alleen een thuis biedt, maar elke dag opnieuw een gevoel van vrijheid. Kom kijken en laat je verrassen.

Hoe kunnen we je helpen?

We beantwoorden graag al je vragen.

Bart uw makelaar

Woningzoeker

Wij houden je op de hoogte van het nieuwste woningaanbod.