Piusstraat 46-A

  • Tilburg
  • € 375.000,- k.k.

Over deze woning

Ben jij op zoek naar een waanzinnig gaaf appartement waar je jouw leven in de mooiste stad van Brabant kan beginnen of voortzetten? Haast je dan snel naar dit appartement aan de Piusstraat! Het huis heeft alles waar je hart sneller van gaat kloppen: sfeervolle uitstraling, karakter met de hoofdletter K, verrassend veel ruimte, een zonovergoten dakterras én een toplocatie met de stad (letterlijk) aan je voeten. Klaar voor een rondje?
Omgeving

Je gaat wonen in hartje Tilburg: een levendig centrum bij uitstek met een dynamisch winkel- en uitgaansleven, geweldige restaurants, gezellige cafés, bars en terrasjes, de Openbare Bibliotheek, de Schouwburg, diverse scholen en supermarkten op loop- en fietsafstand. Dit is wat ze bedoelen met van alle gemakken voorzien zijn.

Tilburg is een soort liefde op het tweede gezicht. Het is een stad die barst van de creativiteit, waar je altijd weer verrassende ontdekkingen doet en waar de vele verborgen pareltjes zichzelf blijven onthullen. Hier leerde Vincent van Gogh tekenen en groeide Guus Meeuwis uit van student tot volksheld. Hier heb je spraakmakende musea, zoals De Pont en het Textielmuseum, maar ook een dwaalgebied vol bijzondere cafés en winkels in prachtige historische panden. Hier ontdek je de hippe Spoorzone, met restaurants waar je heerlijk en uniek kunt eten, of de gezellige Piushaven voor ontspanning op en aan het water. Hier proef je het gevoel van een echte evenementenstad met onder andere de Tilburgse kermis, Festival van het Levenslied, Carnaval, de Meimarkt, Tilburg Zingt, Roadburn Festival en Tilburg Ten Miles. Hier ben je thuis.

Hoewel in Tilburg alles zit wat je nodig hebt, bevind je je via de ringbanen binnen afzienbare tijd op de (snel)wegen richting Eindhoven, ’s-Hertogenbosch, Breda en de omliggende Brabantse dorpen. Ook sta je binnen 10 minuten op het Centraal Station wanneer je gebruik wilt maken van het openbaar vervoer.

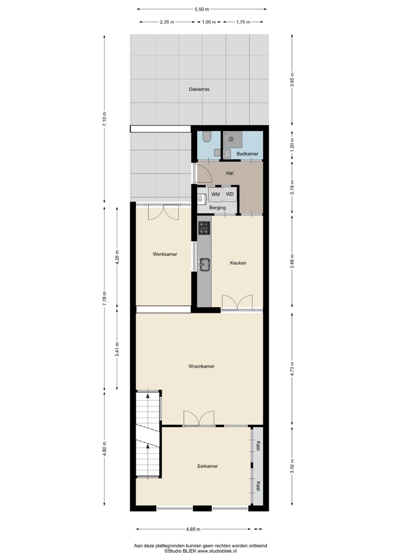
Indeling

Eerste woonlaag
Via de ruime en brede trap kom je bij de voordeur met glas-in-lood, die meteen de toon zet voor de rest van de woning. Zullen we gaan kijken?
Wauw. De leefruimte is wat men bedoelt met wonen met een wow-factor. Het balkenplafond, de houten vloer en de glas-in-looddetails brengen warmte en authenticiteit, terwijl de open indeling, de hoogte van de plafonds en de hedendaagse styling zorgen voor een gevoel van modern woongenot alom.

Allereerst het woongedeelte, dat met haar bakken aan ruimte, daglichtintrede en prachtige vloer, helemaal klaar is voor jouw spullen en stylingkeuzes. Zie jij jezelf hier al heerlijk loungen na een lange werkdag? Ook als je geweldige dinnerparty’s wilt organiseren voor vrienden en familie ben je hier aan het juiste adres. Aan de voorzijde ontdek je namelijk de waanzinnige separate eetkamer – ja, jouw eigen eetkamer – waar jij als een koning kan tafelen nabij de openslaande deuren en grote raampartijen.

En dan zijn we nog niet klaar. De woonkamer loopt aan de linker achterzijde over in een smaller, verhoogd stuk kamer, dat je kan inzetten hoe je dat maar wilt. Een gave thuiswerkplek? Check. Een leuke speelhoek voor de kids? Natuurlijk!

Aan de andere kant van de living loopt de ruimte dan weer naadloos over in de keuken, met een grote doorkijk die je tijdens het koken verbonden houdt met je gezelschap. De keuken zelf is van alle gemakken voorzien: een stijlvol werkblad van Belgisch hardsteen, een Boretti fornuis met oven, Quooker, vaatwasser en klassieke spoelbak.

Vanuit hier loop je verder naar een tussenportaal, dat op haar beurt weer toegang biedt tot de inpandige berging met de aansluitingen voor wasapparatuur en de cv-ketel, de toiletruimte, de badkamer en het terras.

De badkamer is recent opnieuw betegeld en fris afgewerkt. Met een douche, wastafelmeubel en spiegelkast met ingebouwde verlichting heb je alles binnen handbereik. En ook fijn: de kleurrijke toiletruimte is apart gesitueerd en voorzien van een fonteintje en hygiënische handdouche.

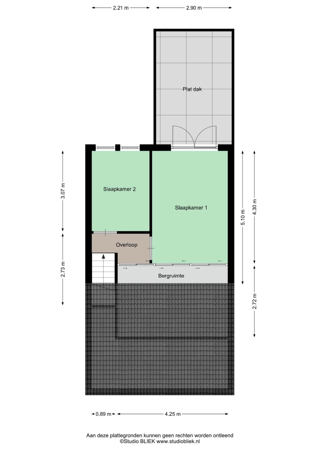
Eerste verdieping
Met het bijkomen van alle cadeautjes op de eerste woonlaag zal je nog even moeten wachten. Op de bovenverdieping vind je namelijk nog twee fijne slaapkamers, beide met strak gestucte wanden, een nette laminaatvloer en inbouwspots voor een rustige, moderne sfeer.

De master bedroom heeft schuifdeurkasten met handige bergruimte achter de knieschotten en openslaande deuren naar het platte dak, waar je ook nog de mogelijkheid hebt om er iets bijzonders van te maken.

Waar de grootste kamer uitermate geschikt is als master bedroom, kan je de andere kamer bijvoorbeeld goed gebruiken als kinderkamer of kantoorruimte. Of droomde je altijd al van een inloopkast?

Dakterras
Dan hét pronkstuk van dit appartement: het royale dakterras op het zuidoosten. Hier begin je je dag met een koffietje in de zon, en sluit je hem af met een goed glas wijn bij het zachte avondlicht. De vlonders zijn vernieuwd en afgewerkt met hardhout, die zowel stijlvol als duurzaam zijn. Zie jij jezelf hier al eindeloos relaxen, borrelen, eten en genieten met iedereen die je lief is?

Dit is een woning om verliefd op te worden. Pak jij deze unieke kans? Run, don’t walk!

Algemeen
De VvE is niet actief, maar er is wel een gezamenlijke bankrekening en een KVK-inschrijving.

Bijzonderheden

– Waanzinnig gaaf, karakteristiek, appartement met twee woonlagen;
– Op een geweldige locatie middenin het Tilburgse stadshart;
– Op loopafstand van alle hotspots;
– Netjes onderhouden en op meerdere vlakken aangepakt en vernieuwd;
– Aangenaam licht in alle vertrekken;
– Ruime woon- en eetkamer met hoge plafonds en gave afwerkingen;
– Twee fijne slaapkamers;
– Een heerlijk dakterras op het zuidoosten;
– Openbaar vervoervoorzieningen om de hoek en voor de deur;
– In de directe omgeving van winkels, horecagelegenheden en recreatiemogelijkheden;
– Alle voorzieningen om de hoek.

Kenmerken

Vraagprijs€ 375.000,- k.k.
StatusBeschikbaar
Bouwjaar1906
Woonoppervlakte103 m2
Aantal kamers4 (waarvan 2 slaapkamers)
Aantal badkamers1
EnergielabelD
Download brochure

Plattegronden

Heeft u interesse in deze woning?

Bart vertelt u graag meer!

Bart uw makelaar

Woningzoeker

Wij houden je op de hoogte van het nieuwste woningaanbod.